Menu
Un projet réalisé par :Gregory Sarlat  Architecte à Bordeaux

Réhabilitation, extension et surélévation d'une échoppe

 Bordeaux - 33
Gregory Sarlat
Accueil Projets Réhabilitation, extension et surélévation d'une échoppe

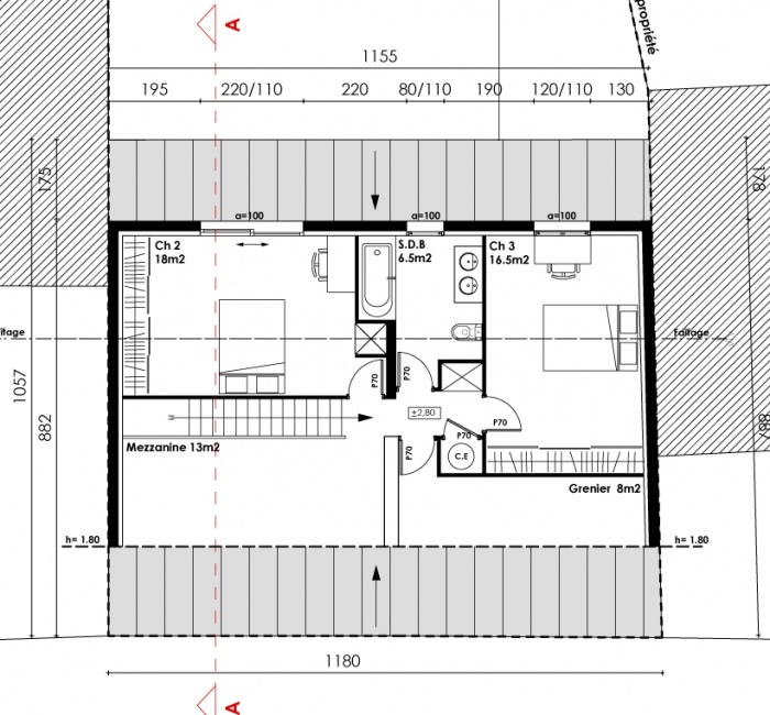
Réhabilitation, extension et surélévation d'une échoppe bordelaise en secteur sauvegardé "ville de pierre".

Réhabilitation, extension et surélévation d'une échoppe

Afin de préserver le caractère patrimonial de l'édifice et de ne pas le dénaturer, la surélévation de l'échoppe n'est envisagée que sur l'arrière du bâtiment, les nouveaux volumes étant créer dans le prolongement de la toiture existante.
L'extension de l'échoppe, quant à elle, sera réalisée sur un de ses cotés.
Toujours dans l'idée de se «fondre» avec l'existant, cette extension reprendra le gabarit de l'échoppe. La toiture de l'extension sera ainsi dans le prolongement de la toiture existante et la façade de l'extension, au nu de la façade de l'échoppe, recevra un placage pierre. Les éléments de modénature (la corniche notamment) seront repris sur la façade de l'extension afin d'assurer une continuité entre les deux parties.
La façade en pierre de l'échoppe sera ravalée, les pierres abîmées changées, la modénature remise en état. Tout ceci dans le respect du caractère patrimoniale de la bâtisse.
La façade coté jardin sera plus "moderne" et traitée avec un bardage bois et un bardage fibro-ciment de teinte blanche.

  • Réhabilitation, extension et surélévation d'une échoppe : image_projet_mini_83037
  • Réhabilitation, extension et surélévation d'une échoppe : 3
  • Réhabilitation, extension et surélévation d'une échoppe : rue.JPG
  • Réhabilitation, extension et surélévation d'une échoppe : image_projet_mini_83036
  • Réhabilitation, extension et surélévation d'une échoppe : 2
  • Réhabilitation, extension et surélévation d'une échoppe : pcmi 6 copy
  • Réhabilitation, extension et surélévation d'une échoppe : coupe.JPG
  • Réhabilitation, extension et surélévation d'une échoppe : facade
  • Réhabilitation, extension et surélévation d'une échoppe : plan rdc
  • Réhabilitation, extension et surélévation d'une échoppe : plan r+1
  • Réhabilitation, extension et surélévation d'une échoppe : INT 1. copy
  • Réhabilitation, extension et surélévation d'une échoppe : INT 2. copy
  • Réhabilitation, extension et surélévation d'une échoppe : échoppe simple
  • Réhabilitation, extension et surélévation d'une échoppe : echoppe
  • Réhabilitation, extension et surélévation d'une échoppe : image_projet_mini_83033

Trouvez un architecte pour votre projet

Protection de vos données personnelles

Depuis toujours, architectes-france.com ne transfère aucune donnée personnelle à d'autres acteurs que ceux directement concernés par le projet (architectes, architectes d'intérieur...) et qui appartiennent à son réseau. Nos listes ne sont jamais transmises ou vendues à des partenaires extérieurs, même si ceux-ci appartiennent au domaine de la construction.
Toute modification dans ce domaine ne serait effectuée qu'avec votre consentement.

Je consens à ce que mes données personnelles soient collectées pour permettre à architectes-france de transférer votre projet aux architectes. Seul Architectes-france, ses équipes internes et la maitrise d'oeuvre concernée par le projet y ont accès. Aucune transmission de données à des tiers à l'exclusion de ceux décrits ci dessus n'est réalisée.

Mes données téléphoniques seront uniquement utilisées par Architectes-france.com et les architectes de notre réseau dans le cadre de la qualification et du suivi de mon projet.

Les données sont conservées pendant une durée de 18 mois courant à partir des derniers contacts effectifs entre architectes-france et vous ou architectes-france et un membre de la maitrise d'oeuvre en rapport avec ce projet et qui serait en relation avec architectes-france.

Conformément à la loi « informatique et libertés », vous pouvez exercer votre droit d'accès aux données vous concernant et les faire rectifier en contactant : Architectes-france, 23 avenue du Mirail - parc du Mirail - 33370 Artigues-près Bordeaux. Tél. 05.47.74.51.01 - contact@architectes-france.com

Trouvez un architecte pour votre projet

Protection de vos données personnelles

Depuis toujours, architectes-france.com ne transfère aucune donnée personnelle à d'autres acteurs que ceux directement concernés par le projet (architectes, architectes d'intérieur...) et qui appartiennent à son réseau. Nos listes ne sont jamais transmises ou vendues à des partenaires extérieurs, même si ceux-ci appartiennent au domaine de la construction.
Toute modification dans ce domaine ne serait effectuée qu'avec votre consentement.

Je consens à ce que mes données personnelles soient collectées pour permettre à architectes-france de transférer votre projet aux architectes. Seul Architectes-france, ses équipes internes et la maitrise d'oeuvre concernée par le projet y ont accès. Aucune transmission de données à des tiers à l'exclusion de ceux décrits ci dessus n'est réalisée.

Mes données téléphoniques seront uniquement utilisées par Architectes-france.com et les architectes de notre réseau dans le cadre de la qualification et du suivi de mon projet.

Les données sont conservées pendant une durée de 18 mois courant à partir des derniers contacts effectifs entre architectes-france et vous ou architectes-france et un membre de la maitrise d'oeuvre en rapport avec ce projet et qui serait en relation avec architectes-france.

Conformément à la loi « informatique et libertés », vous pouvez exercer votre droit d'accès aux données vous concernant et les faire rectifier en contactant : Architectes-france, 23 avenue du Mirail - parc du Mirail - 33370 Artigues-près Bordeaux. Tél. 05.47.74.51.01 - contact@architectes-france.com