Menu
Un projet réalisé par :Atelier diptyque  Architecte à Biarritz

Réhabilitation d'un appartement

 Biarritz - 64
Atelier diptyque
Accueil Projets Réhabilitation d'un appartement

Ce projet d’aménagement d’appartements d’inscrit dans une opération globale réunissant un appartement existant à un ancien cabinet d’avocats. Il fallait créer un ensembles de liaisons hautes et basses entre la partie existante et celle voisine, fraichement acquise, tout en créant une harmonie entre deux espaces radicalement différents.
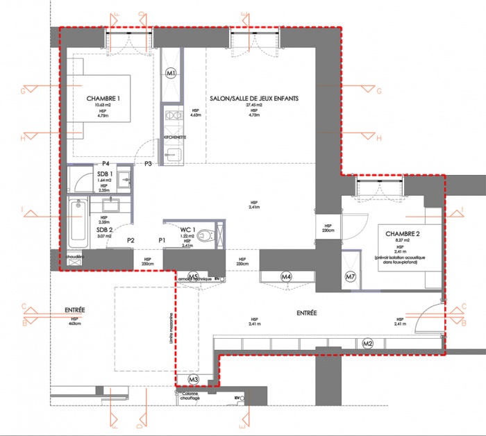
Il s’agissait de trouver un équilibre à la fois visuel et fonctionnel en jouant entre perspectives et volumes. Ces derniers, associés aux jeux de vues, de percements et de lumière entre les deux appartements ont permis d’harmoniser les deux espaces en créant dans l’ancien cabinet d’avocats 3 chambres, 3 salles de bain, un salon et une cuisine d’appoint pouvant le rendre indépendant suivant l’usage des propriétaires

Réhabilitation d'un appartement
  • Réhabilitation d'un appartement : 5
  • Réhabilitation d'un appartement : 6
  • Réhabilitation d'un appartement : 2
  • Réhabilitation d'un appartement : 3
  • Réhabilitation d'un appartement : 7
  • Réhabilitation d'un appartement : 9
  • Réhabilitation d'un appartement : 10
  • Réhabilitation d'un appartement : 11

    phase travaux

  • Réhabilitation d'un appartement : 12

    phase travaux

  • Réhabilitation d'un appartement : 13

    phase travaux

  • Réhabilitation d'un appartement : 3 projet rdc

    plan RDC

  • Réhabilitation d'un appartement : etage

    plan étage

  • Réhabilitation d'un appartement : 5 coupe projet

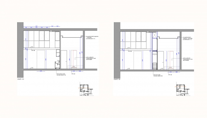
    coupes projet

Trouvez un architecte pour votre projet

Protection de vos données personnelles

Depuis toujours, architectes-france.com ne transfère aucune donnée personnelle à d'autres acteurs que ceux directement concernés par le projet (architectes, architectes d'intérieur...) et qui appartiennent à son réseau. Nos listes ne sont jamais transmises ou vendues à des partenaires extérieurs, même si ceux-ci appartiennent au domaine de la construction.
Toute modification dans ce domaine ne serait effectuée qu'avec votre consentement.

Je consens à ce que mes données personnelles soient collectées pour permettre à architectes-france de transférer votre projet aux architectes. Seul Architectes-france, ses équipes internes et la maitrise d'oeuvre concernée par le projet y ont accès. Aucune transmission de données à des tiers à l'exclusion de ceux décrits ci dessus n'est réalisée.

Mes données téléphoniques seront uniquement utilisées par Architectes-france.com et les architectes de notre réseau dans le cadre de la qualification et du suivi de mon projet.

Les données sont conservées pendant une durée de 18 mois courant à partir des derniers contacts effectifs entre architectes-france et vous ou architectes-france et un membre de la maitrise d'oeuvre en rapport avec ce projet et qui serait en relation avec architectes-france.

Conformément à la loi « informatique et libertés », vous pouvez exercer votre droit d'accès aux données vous concernant et les faire rectifier en contactant : Architectes-france, 23 avenue du Mirail - parc du Mirail - 33370 Artigues-près Bordeaux. Tél. 05.47.74.51.01 - contact@architectes-france.com

Trouvez un architecte pour votre projet

Protection de vos données personnelles

Depuis toujours, architectes-france.com ne transfère aucune donnée personnelle à d'autres acteurs que ceux directement concernés par le projet (architectes, architectes d'intérieur...) et qui appartiennent à son réseau. Nos listes ne sont jamais transmises ou vendues à des partenaires extérieurs, même si ceux-ci appartiennent au domaine de la construction.
Toute modification dans ce domaine ne serait effectuée qu'avec votre consentement.

Je consens à ce que mes données personnelles soient collectées pour permettre à architectes-france de transférer votre projet aux architectes. Seul Architectes-france, ses équipes internes et la maitrise d'oeuvre concernée par le projet y ont accès. Aucune transmission de données à des tiers à l'exclusion de ceux décrits ci dessus n'est réalisée.

Mes données téléphoniques seront uniquement utilisées par Architectes-france.com et les architectes de notre réseau dans le cadre de la qualification et du suivi de mon projet.

Les données sont conservées pendant une durée de 18 mois courant à partir des derniers contacts effectifs entre architectes-france et vous ou architectes-france et un membre de la maitrise d'oeuvre en rapport avec ce projet et qui serait en relation avec architectes-france.

Conformément à la loi « informatique et libertés », vous pouvez exercer votre droit d'accès aux données vous concernant et les faire rectifier en contactant : Architectes-france, 23 avenue du Mirail - parc du Mirail - 33370 Artigues-près Bordeaux. Tél. 05.47.74.51.01 - contact@architectes-france.com