Menu
Un projet réalisé par :MaJ Architecture  Architecte à Paris

Péniche Vega

 Paris - 75
MaJ Architecture
Accueil Projets Péniche Vega

Péniche Vega
Paris (08°)
Réaménagement intérieur d'une péniche sur la Seine.
Collaboration avec l’Atelier Oz (Paris)
Livraison janvier 2011

Péniche Vega

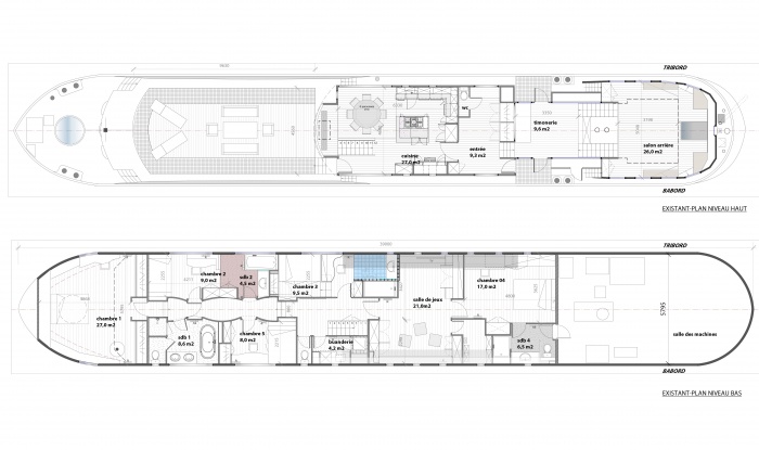
Voilà un projet original que la rénovation d’une péniche en plein Paris...Une famille venant d’acquérir ce lieu de vie souhaite le transformer à leur image.
Ils font appel à nous pour les aider à restructurer les espaces, à réaliser des meubles sur-mesure, et à les orienter sur la décoration.Un gros travail préparatoire consistait au métrage de l’espace intérieur, celui-ci n’étant pas évident à appréhender étant donné la forme de la coque et la situation un peu instable de la péniche qui tangue au fil de l’eau...
Le cloisonnement n’a pas été grandement modifié, mais les aménagements ont été revus. Un grand travail sur le mobilier a été réalisé, ainsi que sur la rénovation des murs et des sols, les couleurs et ambiances.Face à ce maître d’ouvrage exigent, j’ai beaucoup appris, et ce fut une expérience très enrichissante.

  • Péniche Vega : pen7
  • Péniche Vega : pen2
  • Péniche Vega : plans
  • Péniche Vega : IMG_0478.JPG
  • Péniche Vega : IMG_0446.JPG

Trouvez un architecte pour votre projet

Protection de vos données personnelles

Depuis toujours, architectes-france.com ne transfère aucune donnée personnelle à d'autres acteurs que ceux directement concernés par le projet (architectes, architectes d'intérieur...) et qui appartiennent à son réseau. Nos listes ne sont jamais transmises ou vendues à des partenaires extérieurs, même si ceux-ci appartiennent au domaine de la construction.
Toute modification dans ce domaine ne serait effectuée qu'avec votre consentement.

Je consens à ce que mes données personnelles soient collectées pour permettre à architectes-france de transférer votre projet aux architectes. Seul Architectes-france, ses équipes internes et la maitrise d'oeuvre concernée par le projet y ont accès. Aucune transmission de données à des tiers à l'exclusion de ceux décrits ci dessus n'est réalisée.

Mes données téléphoniques seront uniquement utilisées par Architectes-france.com et les architectes de notre réseau dans le cadre de la qualification et du suivi de mon projet.

Les données sont conservées pendant une durée de 18 mois courant à partir des derniers contacts effectifs entre architectes-france et vous ou architectes-france et un membre de la maitrise d'oeuvre en rapport avec ce projet et qui serait en relation avec architectes-france.

Conformément à la loi « informatique et libertés », vous pouvez exercer votre droit d'accès aux données vous concernant et les faire rectifier en contactant : Architectes-france, 23 avenue du Mirail - parc du Mirail - 33370 Artigues-près Bordeaux. Tél. 05.47.74.51.01 - contact@architectes-france.com

Trouvez un architecte pour votre projet

Protection de vos données personnelles

Depuis toujours, architectes-france.com ne transfère aucune donnée personnelle à d'autres acteurs que ceux directement concernés par le projet (architectes, architectes d'intérieur...) et qui appartiennent à son réseau. Nos listes ne sont jamais transmises ou vendues à des partenaires extérieurs, même si ceux-ci appartiennent au domaine de la construction.
Toute modification dans ce domaine ne serait effectuée qu'avec votre consentement.

Je consens à ce que mes données personnelles soient collectées pour permettre à architectes-france de transférer votre projet aux architectes. Seul Architectes-france, ses équipes internes et la maitrise d'oeuvre concernée par le projet y ont accès. Aucune transmission de données à des tiers à l'exclusion de ceux décrits ci dessus n'est réalisée.

Mes données téléphoniques seront uniquement utilisées par Architectes-france.com et les architectes de notre réseau dans le cadre de la qualification et du suivi de mon projet.

Les données sont conservées pendant une durée de 18 mois courant à partir des derniers contacts effectifs entre architectes-france et vous ou architectes-france et un membre de la maitrise d'oeuvre en rapport avec ce projet et qui serait en relation avec architectes-france.

Conformément à la loi « informatique et libertés », vous pouvez exercer votre droit d'accès aux données vous concernant et les faire rectifier en contactant : Architectes-france, 23 avenue du Mirail - parc du Mirail - 33370 Artigues-près Bordeaux. Tél. 05.47.74.51.01 - contact@architectes-france.com