Un projet réalisé par :Fabre Andreotti Architecture

Maison terrasse
Fabre Andreotti Architecture
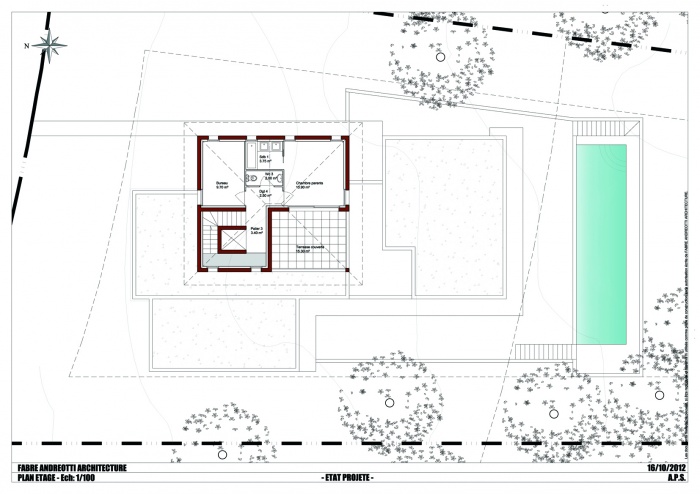
Un programme trés interressant: en sous sol garage trois voitures avec atelier donnant sur une cour anglaise. En rdc, un vaste séjour avec cuisine us, ouvrant sur une trés belle terrasse au milieu de la pinède, 4 chambres, 1 salle de musique, un couloir de nage en haut d'une restanque. A l'étage, la chambre parentale, un bureau et une terrasse couverte bénéficiant du splendide panorama.
-
-
plan rdc
-
plan étage
vue depuis le jardin