Menu
Un projet réalisé par :IFM_MA architecture  Architecte à Pessac

maison GOYA

 Pessac - 33
IFM_MA architecture
Accueil Projets maison GOYA

Rénovation de la maison existante et
Création d'un aménagement extérieur comprenant :
-piscine
-terrasses
-cabanon avec salle de bain, cuisine et espace de rangement

maison GOYA

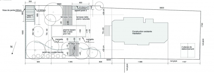
La volonté du maître d'ouvrage était de créer, à l'arrière de la parcelle, un aménagement extérieur comprenant des terrasses, une piscine et un espace couvert regroupant une salle de bain, une cuisine ainsi que des espaces de rangement.
La maison est une vaste demeure de type art déco. Les aménagements créés devaient se situer dans une continuité physique et esthétique par rapport à la maison.
Le parti pris :
- la piscine tiendra une position centrale, dans l'axe et l'alignement des escaliers de la maison. Sa forme est volontairement longiligne, rappelant les proportions d'un bassin.Le dénivelé du terrain a été conservé.
- les terrasses, en bois et en pierre, viendront buter contre les bordures de la piscine. Elles débutent au même niveau que le terrain pour ensuite venir en surplomb.
- le cabanon fait face à la piscine, dans le prolongement d'une des terrasses. Ses portes battantes sont en tôle découpée au laser. Le motif rappelle le décor et les modénatures art déco de la maison. Une première tôle extérieure, couleur rouille, fait apparaître le motif. La seconde, en arrière plan, est noire, perforée, afin de protéger l'intimité et faire ressortir le dessin.

  • maison GOYA : terrasse

    détail terrasses

  • maison GOYA : DSC_5535
  • maison GOYA : DSC_5540
  • maison GOYA : image_projet_mini_32188
  • maison GOYA : plan goya

Trouvez un architecte pour votre projet

Protection de vos données personnelles

Depuis toujours, architectes-france.com ne transfère aucune donnée personnelle à d'autres acteurs que ceux directement concernés par le projet (architectes, architectes d'intérieur...) et qui appartiennent à son réseau. Nos listes ne sont jamais transmises ou vendues à des partenaires extérieurs, même si ceux-ci appartiennent au domaine de la construction.
Toute modification dans ce domaine ne serait effectuée qu'avec votre consentement.

Je consens à ce que mes données personnelles soient collectées pour permettre à architectes-france de transférer votre projet aux architectes. Seul Architectes-france, ses équipes internes et la maitrise d'oeuvre concernée par le projet y ont accès. Aucune transmission de données à des tiers à l'exclusion de ceux décrits ci dessus n'est réalisée.

Mes données téléphoniques seront uniquement utilisées par Architectes-france.com et les architectes de notre réseau dans le cadre de la qualification et du suivi de mon projet.

Les données sont conservées pendant une durée de 18 mois courant à partir des derniers contacts effectifs entre architectes-france et vous ou architectes-france et un membre de la maitrise d'oeuvre en rapport avec ce projet et qui serait en relation avec architectes-france.

Conformément à la loi « informatique et libertés », vous pouvez exercer votre droit d'accès aux données vous concernant et les faire rectifier en contactant : Architectes-france, 23 avenue du Mirail - parc du Mirail - 33370 Artigues-près Bordeaux. Tél. 05.47.74.51.01 - contact@architectes-france.com

Trouvez un architecte pour votre projet

Protection de vos données personnelles

Depuis toujours, architectes-france.com ne transfère aucune donnée personnelle à d'autres acteurs que ceux directement concernés par le projet (architectes, architectes d'intérieur...) et qui appartiennent à son réseau. Nos listes ne sont jamais transmises ou vendues à des partenaires extérieurs, même si ceux-ci appartiennent au domaine de la construction.
Toute modification dans ce domaine ne serait effectuée qu'avec votre consentement.

Je consens à ce que mes données personnelles soient collectées pour permettre à architectes-france de transférer votre projet aux architectes. Seul Architectes-france, ses équipes internes et la maitrise d'oeuvre concernée par le projet y ont accès. Aucune transmission de données à des tiers à l'exclusion de ceux décrits ci dessus n'est réalisée.

Mes données téléphoniques seront uniquement utilisées par Architectes-france.com et les architectes de notre réseau dans le cadre de la qualification et du suivi de mon projet.

Les données sont conservées pendant une durée de 18 mois courant à partir des derniers contacts effectifs entre architectes-france et vous ou architectes-france et un membre de la maitrise d'oeuvre en rapport avec ce projet et qui serait en relation avec architectes-france.

Conformément à la loi « informatique et libertés », vous pouvez exercer votre droit d'accès aux données vous concernant et les faire rectifier en contactant : Architectes-france, 23 avenue du Mirail - parc du Mirail - 33370 Artigues-près Bordeaux. Tél. 05.47.74.51.01 - contact@architectes-france.com