Un projet réalisé par :Franck Beck

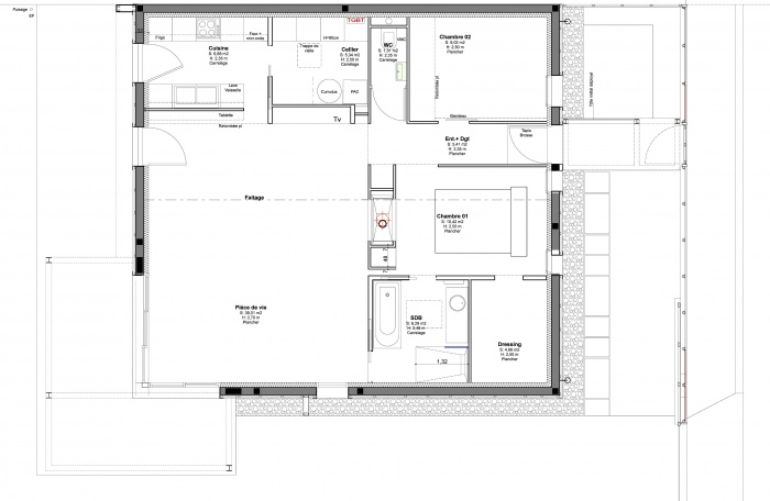
MAISON BK
Franck Beck
Maisons contemporaines
Ossatures bois - construction bois
Déco et Aménagements intérieurs
Maisons bioclimatiques
Maison à ossature bois et bardage type Cedral,
Plancher chauffant sur chape liquide,
Cheminée, PAC air/eau