Menu
Un projet réalisé par :Gregory Sarlat

Construction d'une maison individuelle

Gregory Sarlat
Accueil Projets Construction d'une maison individuelle

Construction d'une maison individuelle sur une parcelle étroite.

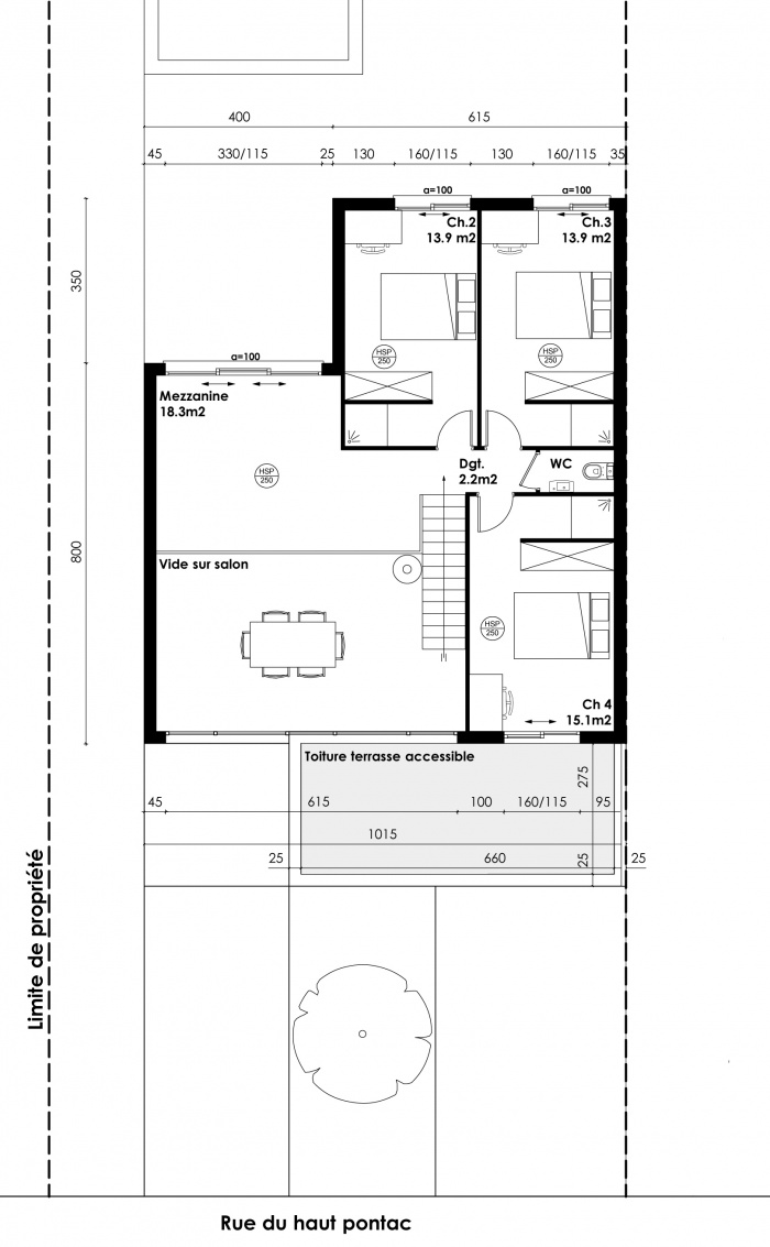
Surface habitable : 153.5 m2 +16.5 m2 de garage + 88 m2 de terrasse extérieure

Le challenge à relever sur cette opération été d’arriver à composer avec une parcelle relativement étroite et orientée Nord-Sud.

La prise de jour étant rendu difficile par l’impossibilité de trouver des fenêtres en façade Ouest et Est et l’obligation d’incorporer un garage à la construction en façade Sud.

Le parti pris a donc été de vitrer au maximum la façade Sud en jouant sur des espaces en double-hauteur pour ramener un maximum de lumière au cœur de la maison.

Construction d'une maison individuelle
  • Construction d'une maison individuelle : 2 final
  • Construction d'une maison individuelle : 2 final copy
  • Construction d'une maison individuelle : 3.JPG
  • Construction d'une maison individuelle : 4.JPG
  • Construction d'une maison individuelle : 5.JPG
  • Construction d'une maison individuelle : 3 INT
  • Construction d'une maison individuelle : RDC
  • Construction d'une maison individuelle : R+1
  • Construction d'une maison individuelle : MASSE
  • Construction d'une maison individuelle : 1. copy
  • Construction d'une maison individuelle : 1 TERRAIN
  • Construction d'une maison individuelle : 2 TERRAIN

Trouvez un architecte pour votre projet

Protection de vos données personnelles

Depuis toujours, architectes-france.com ne transfère aucune donnée personnelle à d'autres acteurs que ceux directement concernés par le projet (architectes, architectes d'intérieur...) et qui appartiennent à son réseau. Nos listes ne sont jamais transmises ou vendues à des partenaires extérieurs, même si ceux-ci appartiennent au domaine de la construction.
Toute modification dans ce domaine ne serait effectuée qu'avec votre consentement.

Je consens à ce que mes données personnelles soient collectées pour permettre à architectes-france de transférer votre projet aux architectes. Seul Architectes-france, ses équipes internes et la maitrise d'oeuvre concernée par le projet y ont accès. Aucune transmission de données à des tiers à l'exclusion de ceux décrits ci dessus n'est réalisée.

Mes données téléphoniques seront uniquement utilisées par Architectes-france.com et les architectes de notre réseau dans le cadre de la qualification et du suivi de mon projet.

Les données sont conservées pendant une durée de 18 mois courant à partir des derniers contacts effectifs entre architectes-france et vous ou architectes-france et un membre de la maitrise d'oeuvre en rapport avec ce projet et qui serait en relation avec architectes-france.

Conformément à la loi « informatique et libertés », vous pouvez exercer votre droit d'accès aux données vous concernant et les faire rectifier en contactant : Architectes-france, 23 avenue du Mirail - parc du Mirail - 33370 Artigues-près Bordeaux. Tél. 05.47.74.51.01 - contact@architectes-france.com

Trouvez un architecte pour votre projet

Protection de vos données personnelles

Depuis toujours, architectes-france.com ne transfère aucune donnée personnelle à d'autres acteurs que ceux directement concernés par le projet (architectes, architectes d'intérieur...) et qui appartiennent à son réseau. Nos listes ne sont jamais transmises ou vendues à des partenaires extérieurs, même si ceux-ci appartiennent au domaine de la construction.
Toute modification dans ce domaine ne serait effectuée qu'avec votre consentement.

Je consens à ce que mes données personnelles soient collectées pour permettre à architectes-france de transférer votre projet aux architectes. Seul Architectes-france, ses équipes internes et la maitrise d'oeuvre concernée par le projet y ont accès. Aucune transmission de données à des tiers à l'exclusion de ceux décrits ci dessus n'est réalisée.

Mes données téléphoniques seront uniquement utilisées par Architectes-france.com et les architectes de notre réseau dans le cadre de la qualification et du suivi de mon projet.

Les données sont conservées pendant une durée de 18 mois courant à partir des derniers contacts effectifs entre architectes-france et vous ou architectes-france et un membre de la maitrise d'oeuvre en rapport avec ce projet et qui serait en relation avec architectes-france.

Conformément à la loi « informatique et libertés », vous pouvez exercer votre droit d'accès aux données vous concernant et les faire rectifier en contactant : Architectes-france, 23 avenue du Mirail - parc du Mirail - 33370 Artigues-près Bordeaux. Tél. 05.47.74.51.01 - contact@architectes-france.com