
Construction d'une maison en ossature bois
Construction d’une maison contemporaine en ossature bois aux performances BBC.
Budget : 311 850€ TTC, compris terrasse, abri voiture , aménagement extérieur, honoraires archi inclus.
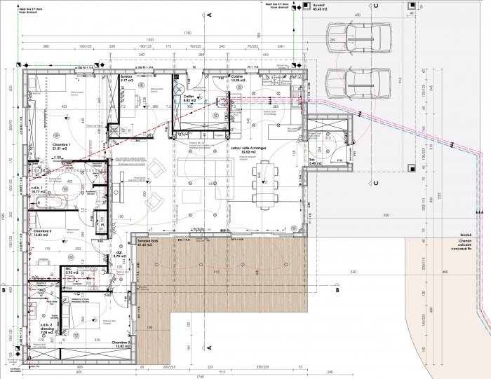
Surface habitable : 162.5m2 + 62 m2 de terrasse extérieure + 45 m2 d’abri voiture.
La principale caractéristique de ce projet est ce grand auvent en porte-à-faux de 3m, situé en façade sud. Il agit comme une véritable casquette bioclimatique, bloquant le rayonnement solaire estival mais lui permettant de rentrer profondément à l’intérieur du logement en hiver.
Structurellement, ce porte-à- faux est possible grâce à l’emploi de quatre grandes poutres lamellées-collées de 12.5m de long, formant des portiques. L’emploi des ces poutres reposant sur les murs extérieurs permet aussi un aménagement assez libre de l’intérieur, sans murs de refend.
Il s’agit ici d’une autre volonté du client, la maison se devait de répondre aux exigences des personnes à mobilité réduite. Les couloirs devaient être réduits au maximum et la grande pièce de vie, la plus spacieuse et ouverte possible. La terrasse couverte quant à elle, devait se libérer de l’emprise de poteaux supportant l’auvent.
Ce projet présente aussi la particularité de se caler sur les normes BBC, sans être allé jusqu'à la certification, on trouve ainsi 18,5 cm d’isolant en mur et 30 cm en toiture. L’étanchéité à l’air a été aussi particulièrement soignée, et la création d’un plénum technique a permis une libre mise en œuvre de l’électricité et de la plomberie sans risquer d’endommager la membrane d’étanchéité.