
Construction d'un cuvier viticole, isolation paille
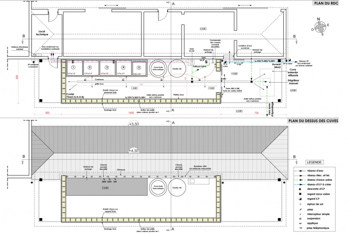
Construction d'un cuvier viticole avec isolation en bottes de paille, toiture photovoltaïque et phytoépuration.
Budget : 226 210€ TTC, compris installation photovoltaïque, phytoépuration et honoraires archi.
Surface: 76,5m2 + 34 m2 d’auvent.
En cours de réalisation.
Le mode constructif retenu est celui d’une ossature bois avec un remplissage en bottes de paille. On isole ici en bottes de paille aussi bien les murs que la toiture.
La particularité de la mise en œuvre tient au fait que des pans entiers de murs et de toitures sont réalisés et pré-isolés en atelier. La finition intérieure en voliges peuplier des caissons de toiture est elle aussi déjà mise en place depuis l’atelier. Une fois sur site, les pans de murs et de toitures sont assemblés. Une trame en roseau est alors appliquée sur la face intérieure des caissons de murs afin de servir de support à un enduit à l’argile. La face extérieure des murs, quant à elle, recevra un bardage en douglas.
En toiture, une installation photovoltaïque de 160m2 et d’une puissance totale de 24 kWc, vient prendre place.
L’épuration des effluents vinicoles sera quant à elle réalisée en phytoépuration par un filtre planté de roseaux.