Menu
Un projet réalisé par :Anissa RACHIDI - ARCHITECTURE ATELIER ARTEFAKT  Architecte à Pessac

APPARTEMENT HAUT BRION

 Pessac - 33
Anissa RACHIDI - ARCHITECTURE ATELIER ARTEFAKT
Accueil Projets APPARTEMENT HAUT BRION

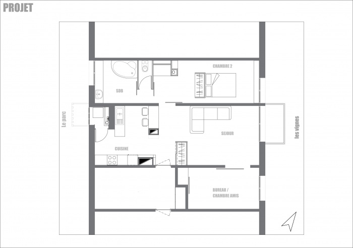
Il s'agit de repenser la spatialité d'un appartement des années 60.

APPARTEMENT HAUT BRION

L'achat de cet appartement par le client avait été motivé par la vue sur les vignes du château Haut Brion. L'idée a donc été de faire en sorte que où que l'on soit dans l'appartement, on puisse profiter de cette vue. Pour cela il a fallu décloisonner l'appartement au maximum et la séparation entre les pièces se fait à l'aide de portes ou de paroies coulissantes permettent de connecter les pièces entre elles.

Ce projet n'a pas été réalisé pour des questions financières et reste donc à l'état de projet...

  • APPARTEMENT HAUT BRION : image_projet_mini_44722

    PLAN EDL

  • APPARTEMENT HAUT BRION : PLAN PROJET

    PLAN PROJET

  • APPARTEMENT HAUT BRION : VUE SÉJOUR
  • APPARTEMENT HAUT BRION : VUE CUISINE
  • APPARTEMENT HAUT BRION : VUE CUISINE 2
  • APPARTEMENT HAUT BRION : VUE CHAMBRE

Trouvez un architecte pour votre projet

Protection de vos données personnelles

Depuis toujours, architectes-france.com ne transfère aucune donnée personnelle à d'autres acteurs que ceux directement concernés par le projet (architectes, architectes d'intérieur...) et qui appartiennent à son réseau. Nos listes ne sont jamais transmises ou vendues à des partenaires extérieurs, même si ceux-ci appartiennent au domaine de la construction.
Toute modification dans ce domaine ne serait effectuée qu'avec votre consentement.

Je consens à ce que mes données personnelles soient collectées pour permettre à architectes-france de transférer votre projet aux architectes. Seul Architectes-france, ses équipes internes et la maitrise d'oeuvre concernée par le projet y ont accès. Aucune transmission de données à des tiers à l'exclusion de ceux décrits ci dessus n'est réalisée.

Mes données téléphoniques seront uniquement utilisées par Architectes-france.com et les architectes de notre réseau dans le cadre de la qualification et du suivi de mon projet.

Les données sont conservées pendant une durée de 18 mois courant à partir des derniers contacts effectifs entre architectes-france et vous ou architectes-france et un membre de la maitrise d'oeuvre en rapport avec ce projet et qui serait en relation avec architectes-france.

Conformément à la loi « informatique et libertés », vous pouvez exercer votre droit d'accès aux données vous concernant et les faire rectifier en contactant : Architectes-france, 23 avenue du Mirail - parc du Mirail - 33370 Artigues-près Bordeaux. Tél. 05.47.74.51.01 - contact@architectes-france.com

Trouvez un architecte pour votre projet

Protection de vos données personnelles

Depuis toujours, architectes-france.com ne transfère aucune donnée personnelle à d'autres acteurs que ceux directement concernés par le projet (architectes, architectes d'intérieur...) et qui appartiennent à son réseau. Nos listes ne sont jamais transmises ou vendues à des partenaires extérieurs, même si ceux-ci appartiennent au domaine de la construction.
Toute modification dans ce domaine ne serait effectuée qu'avec votre consentement.

Je consens à ce que mes données personnelles soient collectées pour permettre à architectes-france de transférer votre projet aux architectes. Seul Architectes-france, ses équipes internes et la maitrise d'oeuvre concernée par le projet y ont accès. Aucune transmission de données à des tiers à l'exclusion de ceux décrits ci dessus n'est réalisée.

Mes données téléphoniques seront uniquement utilisées par Architectes-france.com et les architectes de notre réseau dans le cadre de la qualification et du suivi de mon projet.

Les données sont conservées pendant une durée de 18 mois courant à partir des derniers contacts effectifs entre architectes-france et vous ou architectes-france et un membre de la maitrise d'oeuvre en rapport avec ce projet et qui serait en relation avec architectes-france.

Conformément à la loi « informatique et libertés », vous pouvez exercer votre droit d'accès aux données vous concernant et les faire rectifier en contactant : Architectes-france, 23 avenue du Mirail - parc du Mirail - 33370 Artigues-près Bordeaux. Tél. 05.47.74.51.01 - contact@architectes-france.com